Location: Faisalabad, Punjab
Size: 15,000 SF
Year of Completion: 2024 (On-going)
Design Team: Zohaib Zuby, Majid Khan, Hana Zakaria, Momina Hammad
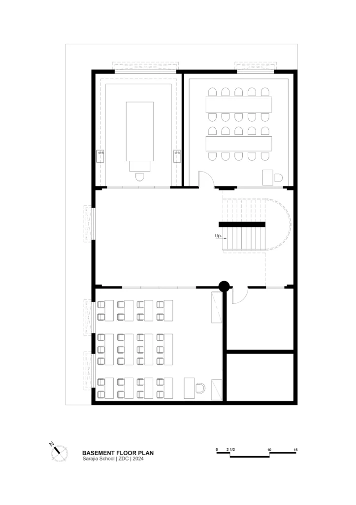
Description: The Sirajia Girls High School in Faisalabad is a transformative project designed for underprivileged girls, spearheaded by a service-oriented and spiritual organization. This renovation takes place in a dense residential and mixed-use area, where the challenge was to maximize utility in a tight space. The design focuses on a rational structural system, optimizing natural light and ventilation throughout the school. The ground floor features a versatile hall, serving as a space for assemblies, events, and play during recess. Custom furniture tailored to the school’s needs enhances functionality. The school’s elevation is thoughtfully crafted with three key objectives: to reflect the spiritual ethos of the organization, to blend with the residential context, and to instill a sense of prestige and pride in the students. This project marks a significant leap forward, offering the young girls a space that truly embodies hope and opportunity.




