Location: Karachi, Sindh
Size: 5200 SF
Year of Completion: 2008 (Built)
Design Team: Zohaib Zuby, Danish Azar Zuby, Abid Shabbar
Photography: Ahmed Shajee
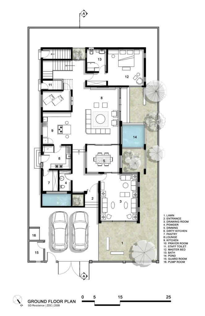
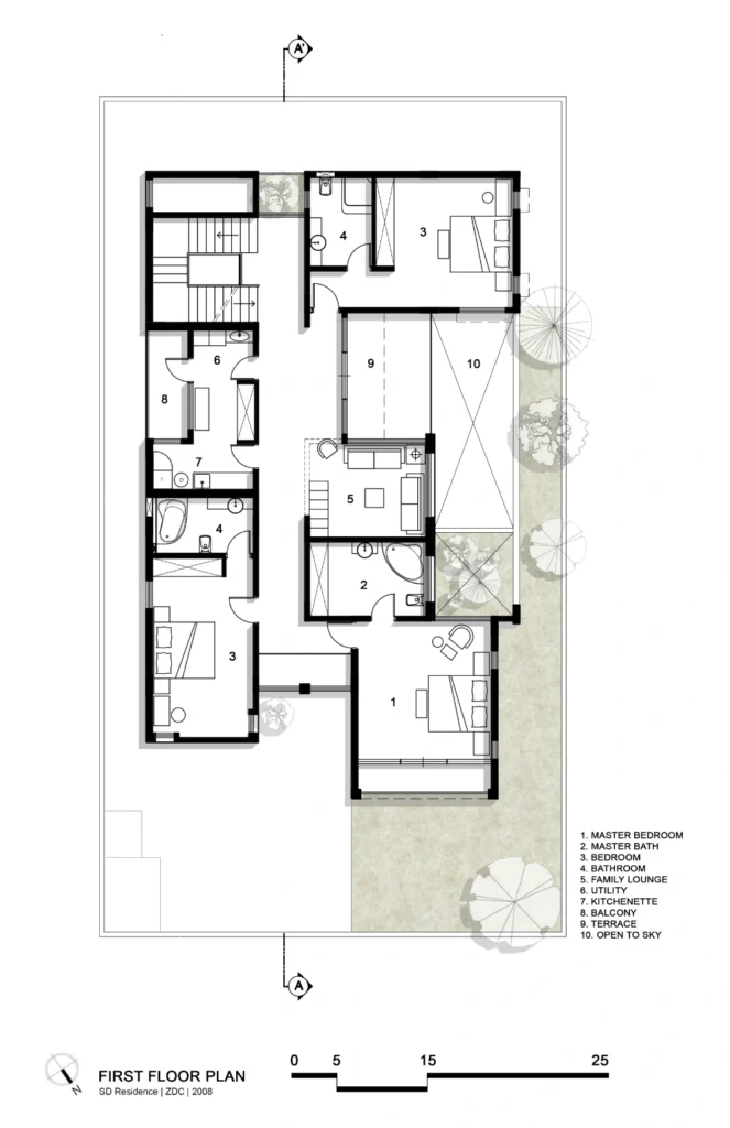
Description: The SD House, designed for a family of five, embodies a vision of seamless living with spacious hosting areas on the ground floor and private quarters above. The design features a series of interconnected spaces—drawing room, dining area, and lounge—opening onto a west-facing courtyard that captures the sea breeze. The house is divided into two volumes, with a pitched roof and a skylight that floods the upper floor with natural light. The exterior showcases a sustainable approach, using locally sourced stone on a double-skin RCC structure, with repurposed stone waste in the boundary wall. As one of the first homes in the city to integrate a wind turbine, the SD House balances environmental consciousness with comfortable, dynamic living spaces.
























