Location: Faisalabad, Punjab
Size: 380 SF
Year of Completion: 2021 (Built)
Design Team: Zohaib Zuby, Khadija Shabbiri
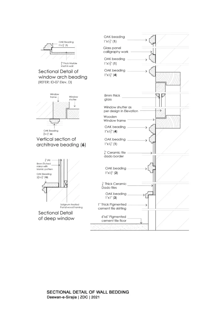
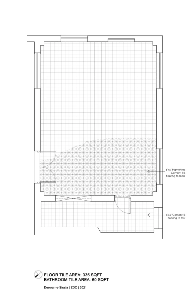
Description: Deewan-i-Sirajia is a formal meeting space and lounge designed for a Sufi Silsila, intended for use during spiritual events like the annual “Urs” and for administrative meetings. The space also serves as a venue for hospitality and dining. The patrons envisioned a space that not only connects deeply with their spiritual roots but also reflects the broader Islamic tradition in South Asia. Despite its small size, the design is intricate, featuring carefully crafted symmetrical symbols, mirror work, and hand-drawn calligraphic artwork by the design studio. A beautifully lit ceiling enhances the ambiance, and even the bathroom was thoughtfully redesigned. The transformation from a primitive outlook to a prestigious, sacred space was a resounding success, fulfilling the patrons’ vision and elevating the space for all who visit.














