Location: Karachi, Sindh
Size: 6250 SF
Year of Completion: 2016 (Un-built)
Design Team: Zohaib Zuby, Nuvera Khatri, Awab Alvi
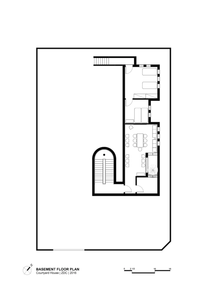
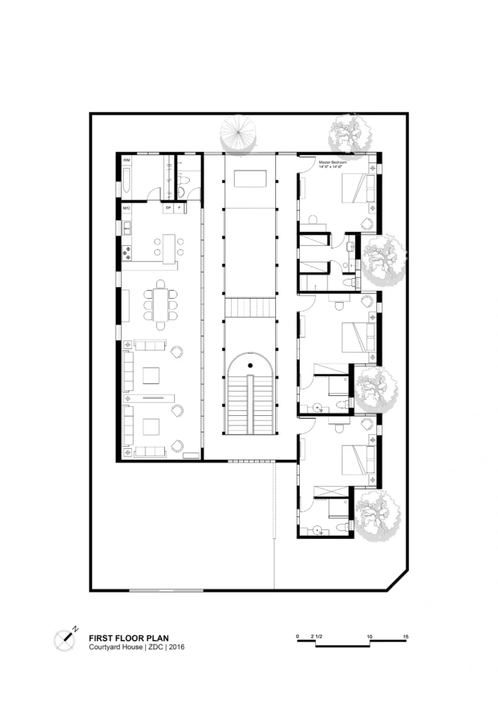
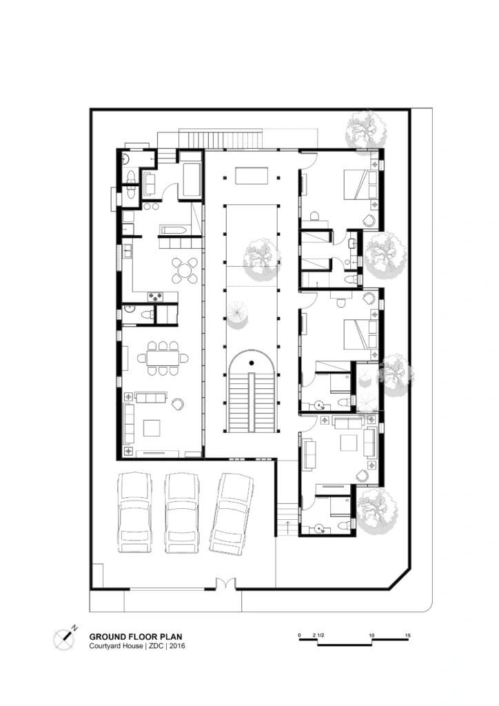
Description: The Courtyard House is a concept home exploring how spatial organization can offer maximum flexibility, minimize built-up footprint, and provide generous semi-open spaces for leisure and play. The design consists of two rectangular forms, strategically pushed apart to create a central courtyard—the soul of the house. These forms are connected by verandahs, bridges, and a hierarchical circulation path. Drawing inspiration from the vernacular courtyard traditions of Punjab and the broader Asian context, the courtyard serves as a prototypical device to organize various residential needs, adaptable to different scales and purposes. The private and public zones within the rectangular forms are rationally planned, while the courtyard itself is enhanced by two large screen walls that filter light, allow airflow, and ensure privacy—an essential feature in dense urban environments.











